Tom Wiltberger
Photos





About This Property
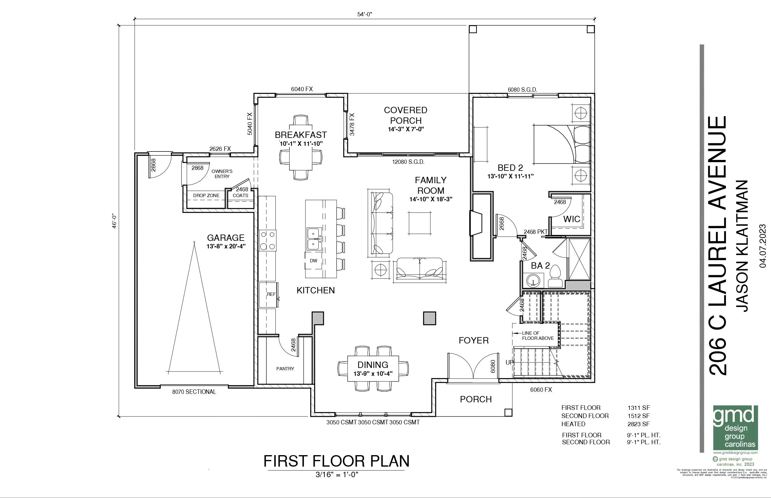
WOW! New & improved design inside & out! 4 bedrooms/3 full baths + bonus,loft & garage! Modern Style & functional. A pre-construction opportunity just 1 block to Carrboro's farmer's market & 3 blocks to Weaver Street Market. A rare flat open lot. Interior features hardwood floors on main level, large kitchen with large breakfast island, quartz tops, stainless appliances, tile backsplash & convenient adjacent drop zone for those book bags, shoes & coats. The open plan makes entertaining or holidays a breeze! Sliding doors to the covered porch & backyard BBQ's. Main floor guest room with full bath doubles as a great home office. Upstairs welcomes you with a loft/library, rounded-out by 2 more bedrooms, upstairs laundry room, bonus rm, and spacious primary suite with en-suite bath & large walk-in closet. 1-car garage. This is a pre-sale opportunity so buyer can select their interior finishes, fixtures, appliances, & more.
Property Details
Year Built
2024
Lot Size
0.17 acres
Property Type
Single Family Residence
Garage
2 spaces
Heating
Electric, Forced Air, Heat Pump, Natural Gas
Cooling
Central Air, Gas, Heat Pump
Sewer
Public Sewer
Water
Public
Location
Monthly Payment Estimate
$5,250/mo
30-year fixed estimate
Estimate only. Does not include taxes or insurance.






