Katherine Kopp
Photos





About This Property
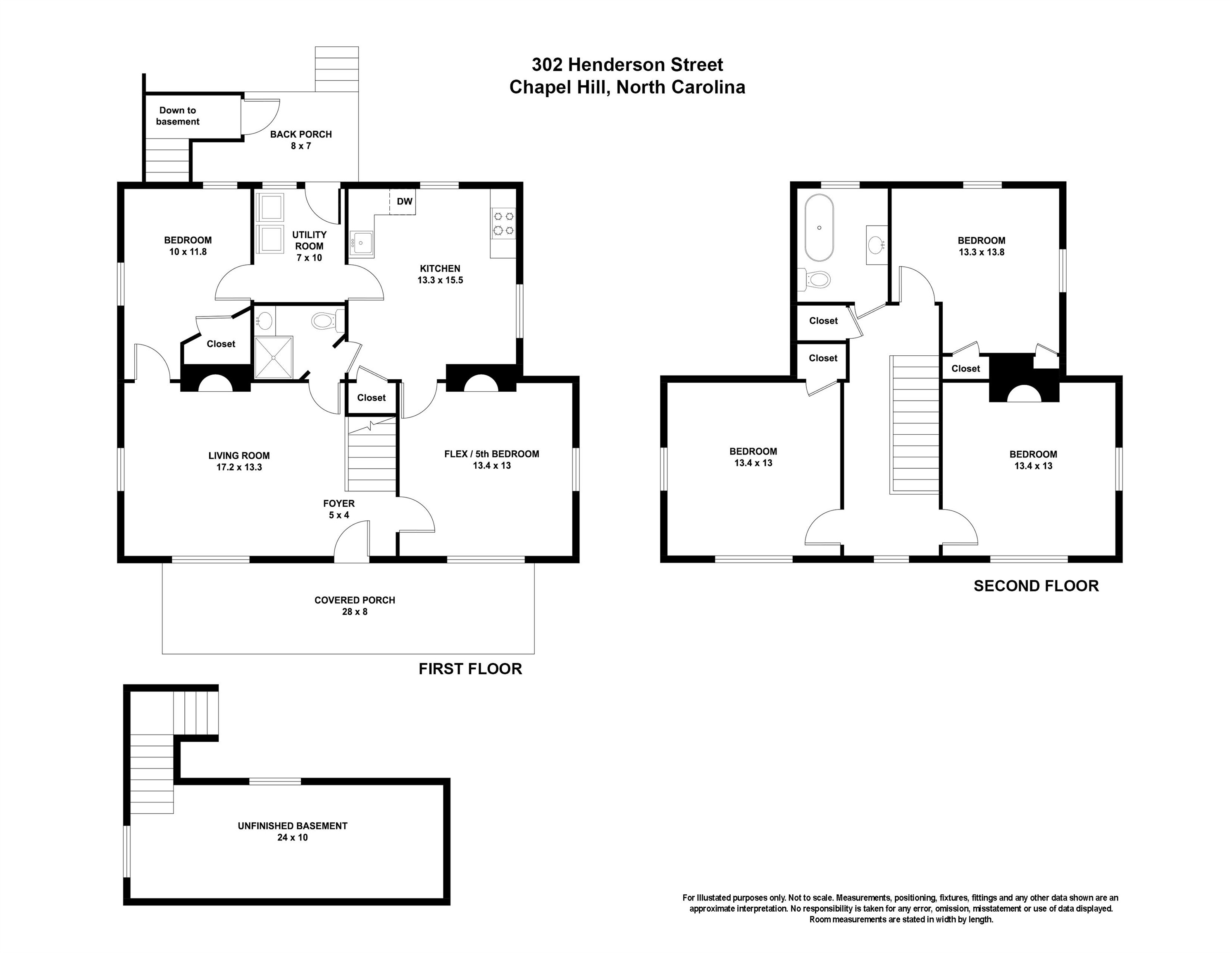
The historic Patterson family home is just two blocks from the UNC campus and the center of downtown Chapel Hill. Walk to campus, UNC football and basketball games and other athletic events, as well as the Ackland Art Museum and performances at Memorial Hall and other campus locations. Freshly painted exterior and partial interior (July 2023). All appliances convey. Other areas above grade are the front porch (224 sf) and back porch (56 sf). Currently an investment property, it has a solid rental history with tenants passing it along each year. It is currently rented for $4000 per month through May 2024. It could easily be rented for $4600-4800 per month, given its stellar location or converted back to single family occupancy. Collect rent while planning updates or renovations, then move in next spring! Tenant occupied; 24 hour notice required (some exceptions may be possible)
Property Details
Year Built
1912
Lot Size
0.11 acres
Property Type
Single Family Residence
Heating
Forced Air, Natural Gas, Zoned
Cooling
Electric, Zoned
Sewer
Public Sewer
Water
Public
Location
Monthly Payment Estimate
$3,717/mo
30-year fixed estimate
Estimate only. Does not include taxes or insurance.






